三江回澜
七塔禅寺召开 “四有档案”之建筑图编制竣工验收专家评审会
七塔禅寺 2024/01/19
2024年1月19日下午2点半,七塔禅寺在禅学堂二楼教室召开“四有档案”之建筑图编制竣工验收专家评审会。宁波市文化遗产管理研究院副院长王麟、原书记徐炯明、研究馆员傅亦民,鄞州区文物保护中心主任金琪军四位文物保护领域专家应邀参会,评审由宁波易旸建筑规划设计有限公司编制的建筑图纸。
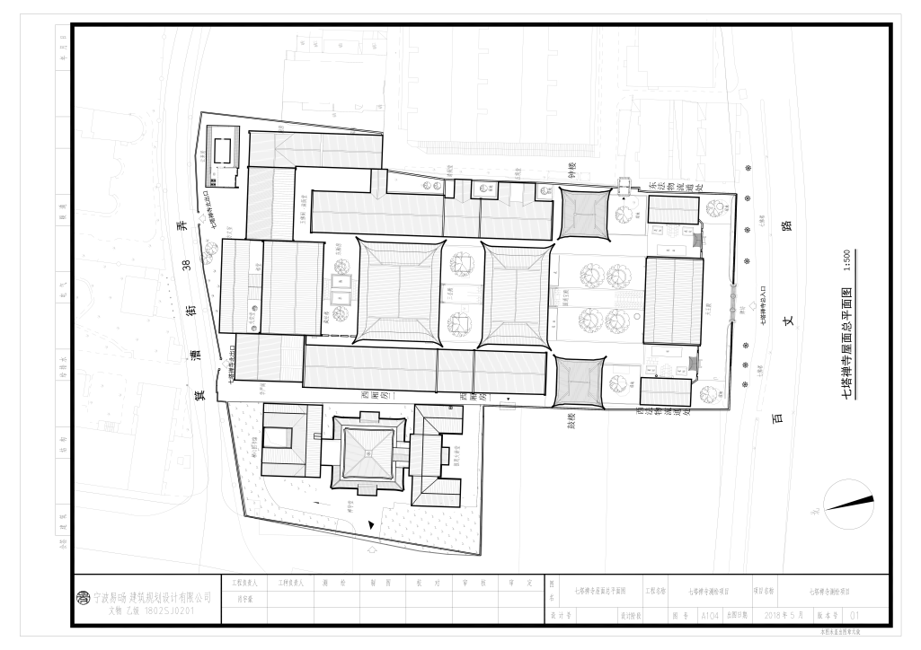
七塔禅寺“四有档案”之建筑图纸编制工作启动于2018年,经过多次反复论证和修改完善,现已基本完成。评审会上,四位专家详细审阅了最新版本的图纸,并结合寺院建筑的实际情况,针对所绘建筑平面图、立面图、剖面图等,在框架结构、建筑配件、轴线标号、高度尺寸、节点连接等方面存在的细节性问题提出疑问,并给出相应专业修改意见。图纸编制方宁波易旸建筑规划设计有限公司院长徐辉及其团队详细记录了验收专家所提意见,表示后续将及时调整完善。
七塔禅寺住持可祥法师,对评审专家以及图纸绘制方为此所做的工作表示感谢。他说,各位专家秉持着对历史高度负责的态度,严谨、客观、认真地指出图纸存在的问题,有利于测绘图的进一步完善;徐院长及其团队重视各方历次提出的修改意见和建议,精益求精,绘制的图纸完整性强、精细入微;寺院会在测绘成果的基础上,邀请国内的建筑专家进一步对各历史建筑展开研究工作,以提高宁波历史建筑的知名度和影响力。

文物保护工作的“四有”是指“有保护范围、有标志说明、有记录档案、有专门机构或指定专人负责管理”,是文物保护单位保护、管理、研究、宣传工作的基础。作为省级文物保护单位,七塔禅寺组织开展 “四有档案”编制工作,旨在建立可永久保存的详实史料,为后续的保护性修缮和未来的寺院建筑规划提供基础材料支撑。


与会人员还有七塔禅寺监院界义法师、定光法师,副寺明德法师,东津融媒体中心工作人员等。

社交平台

